WILLIAMS TOWER

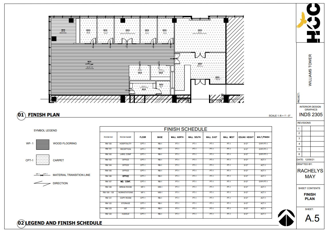
This project involved using an existing architectural floor plan as a foundation to develop a complete construction documentation set. The process included creating a cover sheet, dimensioned floor plans, reflected ceiling plans, elevations, sections, and finish schedules. The goal was to gain hands-on experience translating design concepts into clear, buildable documents that meet industry standards. This exercise strengthened my technical drafting skills and deepened my understanding of construction workflows, material coordination, and detailing for residential interiors.

  • Software used: Autocad

Previous
Previous

Green Building Resource Center