THOMPSON -LEES RESIDENCE

For the Johnson-Lees, we envision "Fusion Elegance in Urban Living": a blend of American charm and Asian minimalism specially made for comfort and style. The kitchen merges Italian functionality with accessibility, while an indoor Zen garden reflects Daniel’s heritage. Social spaces are minimalist yet welcoming, ideal for showcasing their Korean art collection. This concept is a peaceful, eco-friendly home that celebrates diverse cultures and is designed for the couple's lifestyle and values.

MOOD BOARD

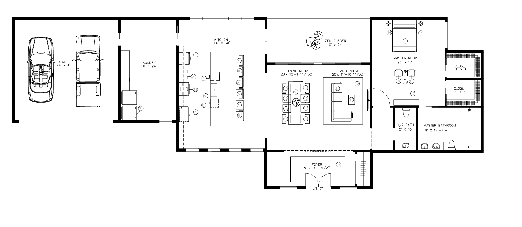
FLOOR PLAN

GET A LOOK OS 360 OF THOMPSON-LEES RESIDENCE

CLICK HERE
Next
Next

THE RANCH - RESIDENTIAL DESIGN